De Noorderhoek. Wonen tussen dorp en stad.
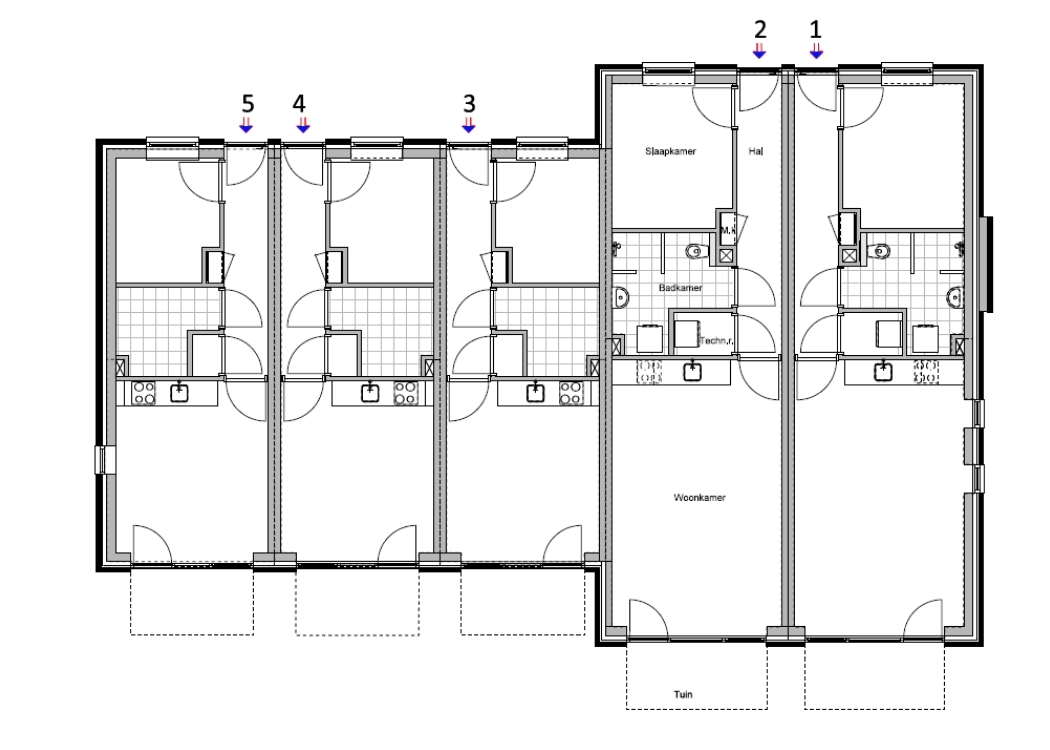
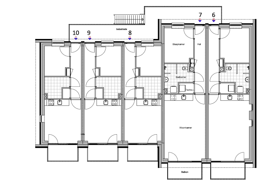
Aan de Zwolseweg in Wenum Wiesel komen 20 moderne appartementen die dorps rust combineren met stedelijk gemak. Je woont hier op een plek met volop natuur rondom, maar Apeldoorn is altijd dichtbij. De appartementen zijn slim ingedeeld, energiezuinig gebouwd en variëren in grootte en prijs — ideaal voor starters, doorstromers en iedereen die comfortabel en ontspannen wil wonen. Een fijne thuisbasis in een groene omgeving, met de stad op fietsafstand.
Rust en ruimte. Met de stad dichtbij.
Ontdek de sfeer.
Zo gaat wonen in De Noorderhoek eruitzien: kleinschalig en overzichtelijk, met 20 appartementen rondom een rustige opzet. Een tuintje om in te ontspannen of een balkon om de dag te starten met een kop koffie – elk appartement heeft z’n eigen buitenplek. De impressies geven de sfeer van het plan weer: gemoedelijk, praktisch en duurzaam. Details kunnen nog iets veranderen, maar het doel staat vast: gewoon lekker wonen in een groene, dorpse omgeving.
Krijg een voorproefje.
Wij zetten de koffie klaar. Jij vertelt wat je zoekt.
Meer weten over dit project, alvast je plek claimen of gewoon sparren over je woonwensen?
Laat van je horen, dan kijken we samen wat Lekr wonen voor jou betekent.
