Julianalaan. Wonen met karakter, vlak bij de binnenstad.
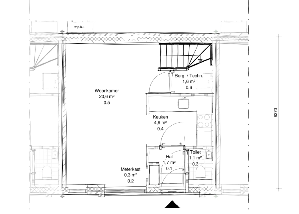
Aan de Julianalaan komen 14 nieuwbouwwoningen in een gezellige, karaktervolle wijk van Apeldoorn. Een plek waar de sfeer van vroeger samengaat met het comfort van nu. Je woont hier rustig, maar toch met de binnenstad op een steenworp afstand: winkels, horeca en cultuur liggen letterlijk om de hoek. De woningen worden eigentijds ontworpen en vormen samen een U-vorm rond een nieuw, groen parkje. Zo woon je niet alleen in een fijne buurt, maar kijk je ook nog eens uit op een plek die rust en ruimte geeft. Een nieuw huis, in een vertrouwde wijk die meteen lekker voelt.
Stad om de hoek, groen voor de deur.
Ontdek de sfeer.
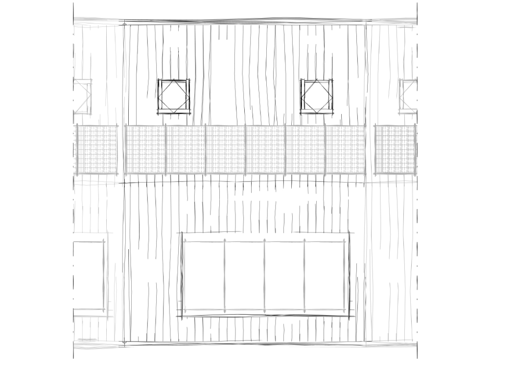
Zo komt wonen aan de Julianalaan eruit te zien: eigentijdse woningen in een gezellige, karaktervolle wijk. Met een gezellig gezamenlijke binnentuin, licht en ruimte binnen en de binnenstad op een paar minuten afstand. De beelden laten de sfeer en beleving zien die we voor ogen hebben. Misschien schuiven er nog wat details, maar het uitgangspunt blijft: een fijne plek waar modern wonen en een vertrouwde buurt hand in hand gaan.
Krijg een voorproefje.
Sleep het groene balkje naar links en rechts om de oude (links) en nieuwe situatie (rechts) te vergelijken.
Wij zetten de koffie klaar. Jij vertelt wat je zoekt.
Meer weten over dit project, alvast je plek claimen of gewoon sparren over je woonwensen?
Laat van je horen, dan kijken we samen wat Lekr wonen voor jou betekent.
